Michelle and I are now living on a three-acre homestead in western Massachusetts, where we also run a small used-book store. Although we’re still far from self-sufficient (after two years of working toward that goal), we add to our “do-it-yourself” skills all the time.
Preserving Food Using a Homemade Food Dehydrator
Since preserving food is an essential part of the lifestyle we’re aiming for, we tried canning at home last summer. This was a new project for us, and we weren’t far into the season when we discovered that we had badly underestimated the number of jars we needed. By the time we’d learned the error of our ways, canning jars and most of the other supplies that go with them were no longer available in this area. So began our search for an alternative way to preserve and store garden produce.
Freezing was automatically out because of the necessary storage unit’s high initial cost and the expense of its operation. That left drying, which appealed to us for a number of reasons:
- A wide variety of edibles can be preserved almost indefinitely when dehydrated by any one of several methods.
OK, we’d dry our harvest… but how? Ideally, in our opinion, facilities for this process should be made part of the homestead dwelling as is done in some regions of Europe. For example, in Apulia — a section of southern Italy noted for unique round stone houses called trulli — drying is carried out on the conical roofs, which are shingled with limestone, weather to a dark gray, and readily absorb and re-radiate solar heat. Access to the housetops is provided by built-in stairways.
For sure, an outdoor drying area will be part of our next homestead house. Meanwhile — since we lack adequate space to hang produce indoors — we decided to build a cabinet that would process a fairly large quantity of food with artificial heat.
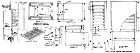
The principle of our food dryer is simple: Hot air — which rises through the container from a heat source below — is baffled around and over trays that hold the produce. These racks are 5 inches shorter than the depth of the cabinet and are placed alternately against its front and back to force the warmed air to circulate through the entire box. (see the detail drawing above.)
The dryer is fairly inexpensive and easy to build. Start by constructing the two side frames out of straight, clear-grained 2 by 2’s, as shown in drawing. The upper 38 inch section of each unit is then covered with 1/2 inch plywood on the outside and with 1/2 inch insulation board on the interior. The slides for the trays (1 inch by 1 inch by 29 1/2 inches) are nailed across the inside of each face from the front edge to within 1/2 inch of the rear edge (the gap at the rear leaves space for a sheet of 1/2 inch insulation board inside the back).
The sheet of insulation, 15 inch by 38 inch, is tacked to the ends of the tray slides as the first step in the dryer’s assembly. Next the top piece and cross brace are attached to the front posts, and boards are nailed on or attached with screws to form the back. The top is then installed, leaving a 3 inch vent as shown in drawing. Insulation for the top is applied in two sections and nailed on from the inside.
A removable plywood chimney fits into the vent and is held in place by a 1 inch by 1 inch strip on each side. Nails are driven partway through these braces to help keep the structure rigid, but can easily be withdrawn and the chimney lifted off when the cabinet is to be stored.
The seven identical trays each measure 14 1/2 inch by 23 inch and can be made of 1/8 inch or 1/4 inch galvanized wire mesh, framed on both sides with 1/2 inch by 1 inch wood strips. (Ruth Hertzberg, Beatrice Vaughan, and Janet Greene, authors of the excellent book Putting Food By, advise against the use of metal screening — especially galvanized wire, which has been treated with zinc,and cadmium — for tray bottoms because of possible contamination of the food. Suggested alternatives are tightly stretched cloth netting, woven baling twine, wood strips, or hardwood dowels. The last are recommended as especially easy to clean. — MOTHER.)
The dryer’s door is built of 1 inch by 2 inch stiles and rails, fitted together with a half lap joint (see the detail drawing above). The framework is covered on the outside with 1/4 inch plywood or some similar material and on the inside with 1/2 inch insulation board.
As shown above, a 12 inch X 18 inch piece of sheet metal is suspended by wire from the dryer’s upper corners and hangs below the racks to act as a spreader for the warmed air. The distance from the top of the heat source to this panel should be at least 2 inches.
We’ve found that a medium-sized kerosene stove provides sufficient warmth to operate our dryer. Other sources of controlled heat — such as gas or electric heaters or even a battery of light bulbs may also be used. If the unit is to be powered by an oil stove or similar device, fireproof aprons of asbestos or sheet metal should be installed permanently on the cabinet’s sides and temporarily on its front and back.
The cabinet is warmed before the filled trays are put in. It’s a good idea to have a thermometer inside the dryer to check the temperature which should vary from 125 to 160 degrees Fahrenheit during the drying period and is usually increased during the middle stages. The fruits or vegetables undergoing dehydration should be moist to the touch, and cooler than the air flowing over them. If they feel hot and dry, the processing is being done too rapidly.
The positions of the trays are changed every 30 minutes or so during the drying period. Remove the top shelf, shift the remaining racks up one space, and replace the top tray at the bottom of the stack. Be sure to alternate the racks against the back and front of the cabinet at each change, so that the hot air will always travel back and forth inside the dryer.
The time required to dry food will vary according to the type of produce, the size of the pieces, the type of dryer and even the weather. Fruits are ready to be removed from the cabinet when they’re leathery and tough (after six to 24 hours), and vegetables after they’ve become brittle (three to 15 hours). Whenever you’re in doubt about whether or not your unit’s contents are done, continue the heating a little longer at a reduced temperature. Even then, some of the pieces may not be completely dried when a batch of food is taken from the dryer. If so, cull out the offenders, since they may mold during storage.
If you ever find yourself forced to hold dried produce for a time before you can properly store it, reheat the food to 165 degrees Fahrenheit just before tucking it away in airtight containers. Stored edibles that show signs of moisture should be reheated and repacked.
A final note: In this article we’ve made no mention of the special preparation methods and drying conditions required by various fruits and vegetables. This information can be found in a number of books, including the following:
- Putting Food By by Ruth Hertzberg, Beatrice Vaughan, and Janet Greene, The Stephen Greene Press.
- Complete Book of Home Storage of Vegetables and Fruits by Evelyn V. Loveday, Garden Way Publishing Co.
- Stocking Up by the Editors of Organic Gardening and Farming, Rodale Press, Inc.
- Dry It — You’ll Like It! by Gen MacManiman, Fall City, Washington.
Highly recommended by the MOTHER EARTH NEWS editors: The Solar Food Dryer book, by Eben Fodor. If you are thinking of building a solar food dryer, or you just want to learn the basics of how to preserve food by dehydrating, this is the best book available. Includes full details on how to build a very effective solar-powered dehydrator.

