David and Jeanie Stiles are renowned builders and authors of 23 books on woodworking projects. In Backyard Building, (The Countryman Press, 2014) the couple shows readers how to make that patch of land their very own. There are more than 20 projects ranging in complexity, the easiest of which requires only a few hours of dedication from a beginner. Below are the instructions for one of the favorite projects: Classic Cottage Garden Shed.

Because of its simplicity, this classic cottage can be used as a potting shed, or be converted into an artist’s studio or a children’s playhouse. Other people have used this compact 7’×9′ design for a writer’s retreat, a yoga studio and even as extra accommodation for weekend guests. Keep it basic or wire it for electricity and plumbing–even add a skylight, depending on your preference. It’s a practical design and size–one that can evolve as your needs change. It is especially attractive with a stain finish, or painted white or a dark Charleston green. Create a curving pebbled path leading up to the front door, and end it with a nice piece of slate or bluestone.

Materials
Base
2 10′ 2×6 pressure-treated lumber for base
1 14′ 2×6 pressure-treated lumber for base
2 14′ 2×6 pressure-treated lumber for floor joists
4″×8″×16″ solid concrete blocks for base (quantity varies)
Slate shims for base (quantity varies)
2 4’×8′-3/4″ exterior plywood for floor
Walls
6 10′ 2×4 construction fir for front & back plates
2 14′ 2×4 construction fir for end plates
10 12′ 2×4 construction fir for horizontal nailers and window framing
Note: fir & pine should be treated with clear preservative for outdoor use
384 linear feet 1×8 tongue & groove #2 pine for siding
Roof
5 10′ 2×4 #2 construction fir for rafters
1 4’×4′ 1/2″ plywood for gusset plates
1 10′ 1×2 for ridge pole
1 roll 6″-wide insect screening for eaves
Roof trim
2 10′ 1×4 #2 pine for fascia boards
2 10′ 1×4 #2 pine for gable trim
4 12′ 11⁄16″×1-3/8″ solid crown molding for roof
2 10′ 1×6 for eave boards
22 10′ 1×4 for spaced sheathing
Roofing
5 bundles 18″ premium red-cedar shingles for roofing
2 12′ 1×4 #2 cedar for ridge trim
Windows
2 8′ 1×6 #2 pine for window jambs
2 10′ 1×8 tongue & groove pine for shutters
1 8′ 1×4 #2 pine for shutter batten
Door
1 12′ 1×8 tongue & groove #2 pine for door
2 12′ 1×6 #2 pine for door battens & jamb
2 10′ 1/4″×1-1/8″ lattice for insect screen
5 12′ 1×4 #2 pine for door trim, diagonal door brace, and corner boards
3 18″ wrought-iron strap hinges
4 lbs. 3-1/2″ common nails
4 lbs. 2″ spiral- or ring-shank siding nails
1 lb. 1-1/4″ galvanized deck screws
Shelf
1 12′ 1×12 #2 pine for shelf
1 12′ 1×2 #2 pine for shelf front trim
1 8′ 1×6 for tool board
1 3′ 1″-diameter wooden dowel for tool pegs


Base
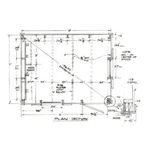
Begin by building a level base. Cut two pieces of 2×6 lumber to 9′, and two more to 6′-9″. Nail them together into a 7’×9′ rectangle, using 3.” common nails. Cut four 2×6 P.T. floor joists 6′-9″ long, and nail them inside and at right angles to the long sides, spaced 24″ on centers. Place the last floor joist 12″ from the end. Measurements are made from outside of frame to center of joist.
Adjust for any unevenness in your building site by shoring up the base. Do this by laying the frame on concrete blocks at the low end of your building site. Use solid concrete blocks (4″×8″×16″) stacked as necessary. If you need more than three blocks together, consider switching to 12″-diameter cardboard Sonotubes: these are buried 36″ deep in the ground, and filled with concrete to form piers. Add slate shims between the blocks and the frame to make it perfectly level. For several days, periodically check that the frame has not settled out of level.

Floor
Cut two pieces of 3/4″ exterior plywood to 4’×7′, and nail them on top of the floor frame. Temporarily nail all four corners of each piece of plywood to the frame, to make sure the frame is square. Double-check by measuring the diagonals: they should be 136-7/8″, and identical. Nail the plywood to the frame with 2″ siding nails at 6″ intervals. Use the leftover plywood to cover the 12″-wide opening at one end of the floor.



Walls
Build the back wall first, by cutting two 2×4s into 9′ plates, and five 2×4s into 69″ studs. Using the floor as a work platform, nail the 2×4 top and bottom plates to the ends of the studs, 26-5/8″ on centers.
Lift up the back wall frame and secure it in place with two 2×4 braces, nailed to the sides of the wall and to the sides of the floor frame.
Build the two end walls in the same way. Cut 77″-long top and bottom plates, to allow for the thickness of the front and rear walls. Cut four 69″-long studs for each end wall. Once they are assembled, stand them up and temporarily nail them to the back wall frame.
Build the front wall to the dimensions shown in the plan, doubling the number of corner studs for extra strength. After checking that the measurements are correct and the frame is square and plumb (vertical), nail the 2×4s together permanently with 3-1/2″ common nails.
To make sure the frame stays in alignment while you are completing the structure, temporarily nail 1×4 diagonal braces to the inside walls. Complete the frame by cutting and nailing a second layer of 2×4s (cap plate) over the top plates.
To strengthen the walls, toenail 2×4 nailers horizontally between the studs, 33-3/4″ up from the floor. Cut two pieces of 2×4, 25-1/2″ long, and nail them between the studs at each of the two window locations.

Siding
To cover the walls with horizontal sheathing, you will need approximately 384 linear feet of 1×8 tongue & groove #2 pine. Partially hammer three nails into the 2×6 base of each side, 1″ below the 3/4″ plywood floor. Use these as a ledge on which to rest the first course of sheathing. Start at the back and work around, one course at a time, using 2″ spiral- or ring-shank siding nails.
Face nail the first row of boards at the bottom, and toenail them at the top. The remaining boards are held at the bottom by the tongue & groove, and toenailed into the tongue at the top of each successive board. Continue until you reach the top, rip cutting the last course if necessary so that the board fits below the cap plate.
Rafters
The five pairs of 2×4 rafters are joined at the peaks by 1/2″ plywood gusset plates. Begin by cutting a 10′-long 2×4 in half. Cut a 54-degree angle on one end of each piece. Using an electric jig saw, cut a bird’s mouth notch to allow the rafters to sit on the top plate.
Join the rafters at the top with 24″-wide triangular gusset plates, cut from a piece of 1/2″ plywood. Make the gussets by cutting an 8-1/2″-wide by 24″-long rectangle, and cut off the two sides at 36.5-degree angles. Nail the gusset plates to the rafters, using 2″ siding nails.
Cut a 3/4″×1-1/2″ notch out of the center peaks to accept a 1×2 ridgepole. Mark the ridgepole at 26-5/8″ intervals. With an assistant, set up the two outside pairs of rafters (trusses) first, then the three inner pairs. Rest the 10′-long ridgepole in the notches.
Staple a 6″-wide piece of aluminum insect screening to the top edge of the front and rear siding and to the bottoms of the rafters.
Finish nailing the siding on both gable ends. Let the ends of the siding overhang the tops of the rafters, then snap a chalk line and cut them off in one pass, using an electric circular saw. If any of the siding boards protrude above the rafters, this will create a bump in the roof.



Finishing the Roof
Nail a 10′-long 1×4 fascia to the ends of the rafters using 2″ siding nails, allowing 6″ to extend beyond each end wall. Nail a 10′-long 1×6 over the rafters and the fascia. Cut four 1×4s 5′ long for the gable trim; cut off one end of each at a 54-degree angle to fit together at the top. Notch out the top of the gable trim to accept the end of the 1×2 ridgepole.
To support the cedar shingles, attach two 10′- long 1×4 nailers above each of the 1×6s along the eaves. Allow a 2″ space and add another nailer, continuing up the roof until you reach the peak. Fix the ends of the nailers to the gable trim.



Finish off the roof framing by adding 11⁄16″×1-3/8″ solid crown molding to the eaves and the gables. For a professional, finished appearance, miter the corner moldings where they meet.
Use five bundles of red cedar shingles to cover the roof. Double the first course, and overlap the gables and eave edge by 1/2″. Nail on each course 5-1/2″ above the preceding one, making sure to stagger the shingles so the joints don’t line up. Use a chalk line or a straight piece of 1×4 to keep the lines straight. Cover the peak with two 121″-long pieces of cedar. Rip cut each at a 54-degree bevel along one edge before they are nailed together.

Finishing Touches
The shutters on this cottage can be decorative or functional. Whether they are left natural, stained, or painted, they give the building a more finished appearance.
To build shutters for two windows, cut eight pieces of 1×8 tongue & groove 24″ long. Cut 1″ off the grooves of four pieces and 1″ off the tongues of the others, so that the total width of each shutter panel is 12″. To make the horizontal battens, cut eight pieces of 1×4, 10″ long, and position one 3″ from the bottom and one 3″ from the top of each shutter. Screw the battens to the shutters with 1.” galvanized deck screws. For a more professional job, counterbore and fill the holes with wooden plugs. Hinge or screw the shutters to the window.
More from Backyard Building:
• How to Build a Rustic Gate
• How to Build a Timber Frame

Reprinted with permission from Backyard Building by Jeanie and David Stiles and published by The Countryman Press, 2014.

